The Urban Hotel of Tomorrow: "The Line as a Serving Thickness".
Saint-Denis, France

Date : 2023

Project focus : Hotel

 

1. Vision and Concept

In the face of competition from platforms like Airbnb and new global challenges (climate, crises, post-Covid), the hotel must no longer be a mere place for temporary accommodation. It is becoming a hub for sharing and local immersion. The project advocates for a mix of uses: work (coworking), leisure, and rest, while remaining open to its urban environment to foster interactions between travelers and local residents.

2. Location: Saint-Denis (93)

The project is located at 20 rue Francis de Pressensé, in the heart of a rapidly transforming Seine-Saint-Denis (2024 Olympics, Grand Paris Express). The site, near the Stade de France and major corporate campuses (SNCF, Orange), offers significant potential despite a major noise constraint due to its proximity to the A86 motorway.

3. Program and Spaces

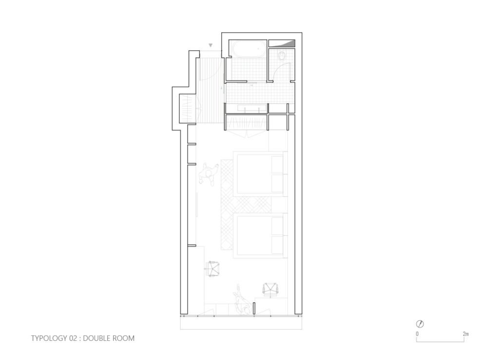
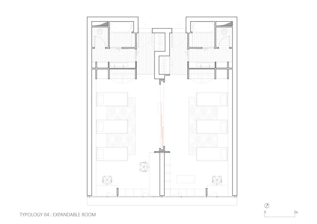
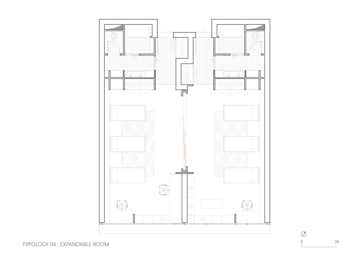
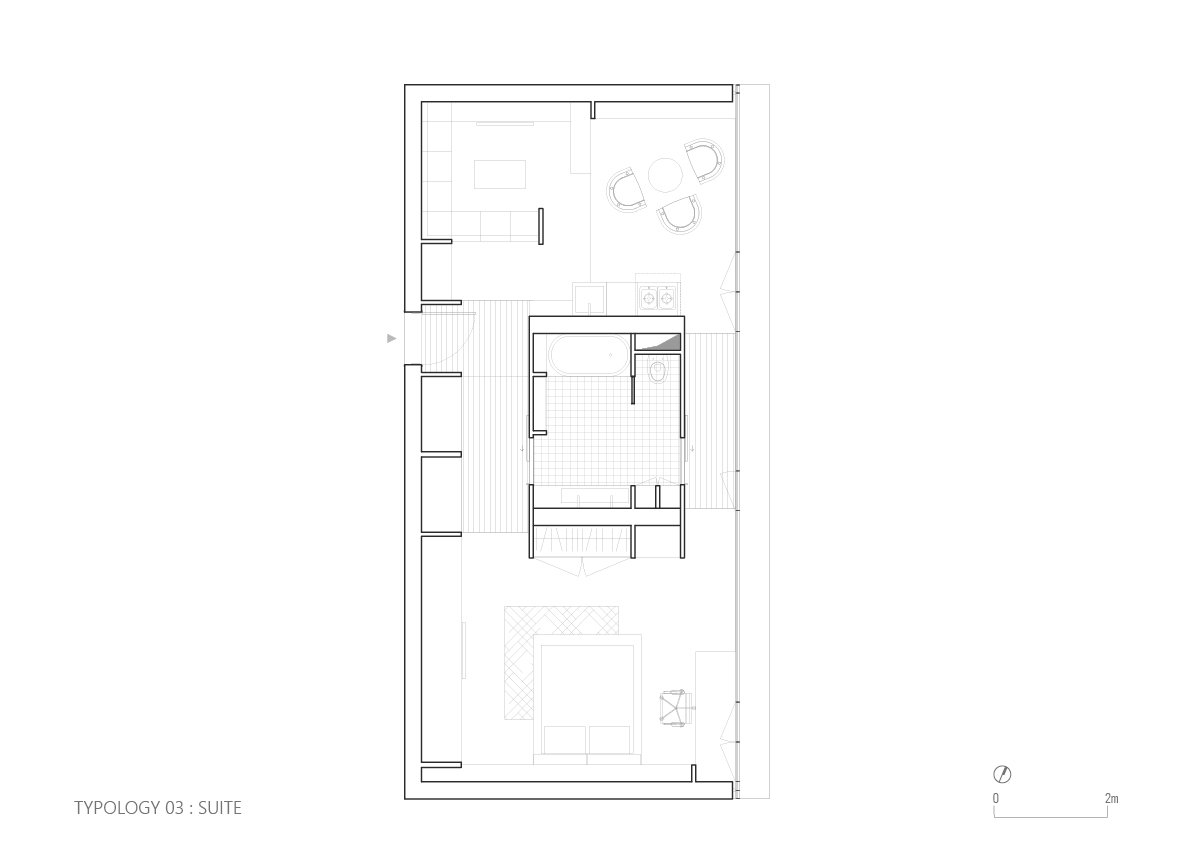
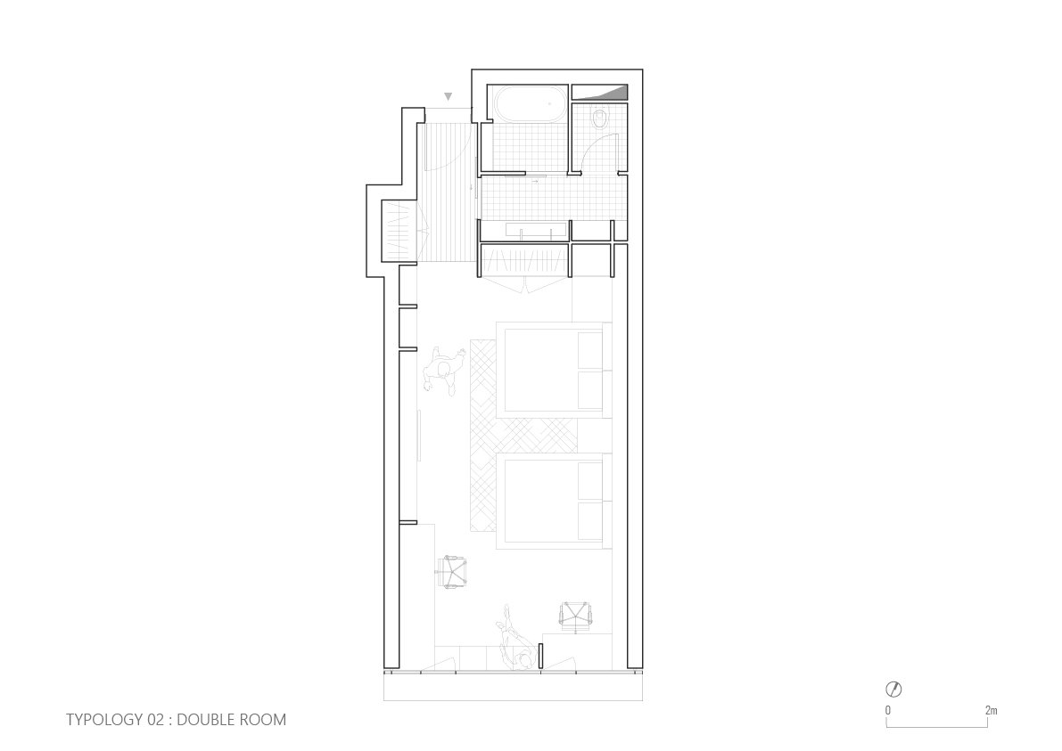
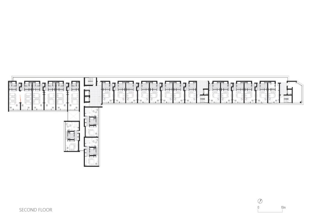
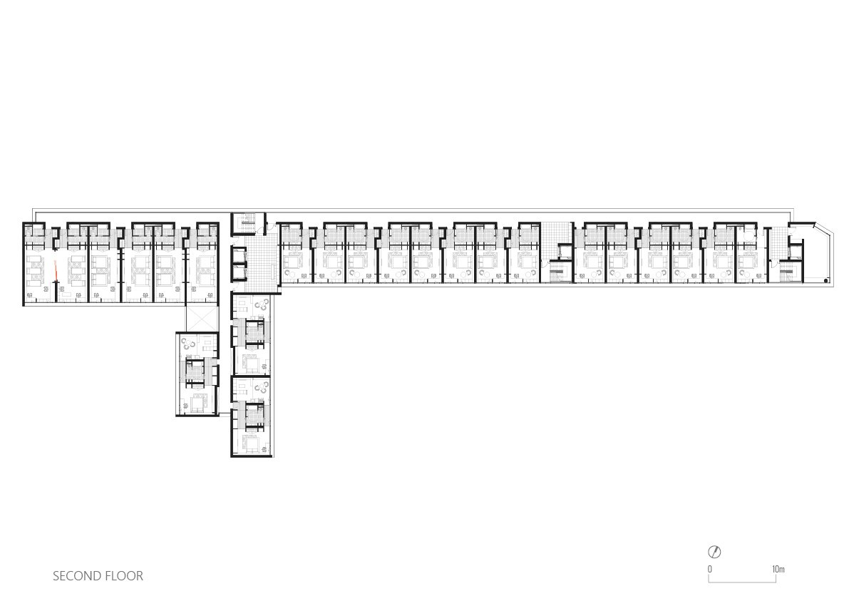
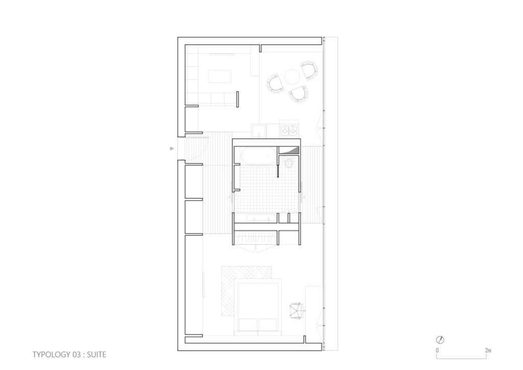
The establishment offers 118 rooms (singles, doubles, modular rooms for groups, and suites) structured as follows:

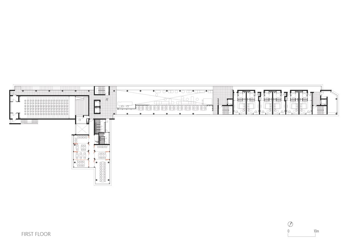
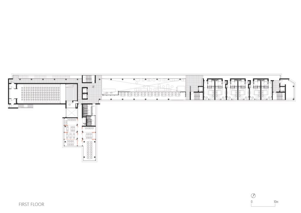
  • Basement: Naturally lit parking, logistics, administration, and a multi-purpose hall seating 102 people.

  • Ground Floor: Double-height reception and lobby, bar, restaurant open to the public, and an art gallery.

  • 1st Floor: Hybrid coworking spaces featuring sliding partitions.

  • Rooftop: Green roof, swimming pool, and gym with panoramic views.

  • Outdoors: Landscaped gardens in the heart of the block with permeable soils.

4. Architectural and Acoustic Strategy

The concept is based on a protective rectilinear figure. To counter noise pollution:

  • An insulating thickness (serving as the distribution circulation) is placed on the street side, acting as a shield.

  • Bathrooms and wall-integrated storage are positioned along the north facade to reinforce acoustic insulation.

  • The Inhabited Window: It is no longer just an opening in the wall, but becomes a piece of furniture (seating, desk) conducive to contemplation.

5. Construction and Environment

The project adopts a mixed structure: low-carbon reinforced concrete for the load-bearing elements and wood for the facades and interior furnishings. The free facades allow for ribbon windows to maximize natural light (atrium, skylights), thereby reducing energy consumption. The vegetation (gardens and rooftop) contributes to thermal regulation and urban biodiversity.

The Urban Hotel of Tomorrow: "The Line as a Serving Thickness".
Saint-Denis, France

Date : 2023

Project focus : Hotel

 

1. Vision and Concept

In the face of competition from platforms like Airbnb and new global challenges (climate, crises, post-Covid), the hotel must no longer be a mere place for temporary accommodation. It is becoming a hub for sharing and local immersion. The project advocates for a mix of uses: work (coworking), leisure, and rest, while remaining open to its urban environment to foster interactions between travelers and local residents.

2. Location: Saint-Denis (93)

The project is located at 20 rue Francis de Pressensé, in the heart of a rapidly transforming Seine-Saint-Denis (2024 Olympics, Grand Paris Express). The site, near the Stade de France and major corporate campuses (SNCF, Orange), offers significant potential despite a major noise constraint due to its proximity to the A86 motorway.

3. Program and Spaces

The establishment offers 118 rooms (singles, doubles, modular rooms for groups, and suites) structured as follows:

  • Basement: Naturally lit parking, logistics, administration, and a multi-purpose hall seating 102 people.

  • Ground Floor: Double-height reception and lobby, bar, restaurant open to the public, and an art gallery.

  • 1st Floor: Hybrid coworking spaces featuring sliding partitions.

  • Rooftop: Green roof, swimming pool, and gym with panoramic views.

  • Outdoors: Landscaped gardens in the heart of the block with permeable soils.

4. Architectural and Acoustic Strategy

The concept is based on a protective rectilinear figure. To counter noise pollution:

  • An insulating thickness (serving as the distribution circulation) is placed on the street side, acting as a shield.

  • Bathrooms and wall-integrated storage are positioned along the north facade to reinforce acoustic insulation.

  • The Inhabited Window: It is no longer just an opening in the wall, but becomes a piece of furniture (seating, desk) conducive to contemplation.

5. Construction and Environment

The project adopts a mixed structure: low-carbon reinforced concrete for the load-bearing elements and wood for the facades and interior furnishings. The free facades allow for ribbon windows to maximize natural light (atrium, skylights), thereby reducing energy consumption. The vegetation (gardens and rooftop) contributes to thermal regulation and urban biodiversity.